Overhead Circular Water Tank Design Xls . Circular water tank circular concrete tanks have been used extensively in municipal and industrial facilities for several decades. To study the guidelines of design of water tank according to is code and checking the design.
Rectangular Overhead Water Tank Design Pdf from electric-cars.com
Area of steel area of reinforcement of circular tank is greater less. 2.4 flexible base circular water tank 19 2.5 rigid base water tank 21 2.6 under ground water tank 23 2.7 programs 25 3 results and discussion 42 3.1 design of circular tank 43 3.2 design of underground water tank 46 4 conclusion 48 5 reference 49 pdf machine Rcc water tank design basis the constructor.
Rectangular Overhead Water Tank Design Pdf
The dome is designed for meridonial thrust and hoop force]. Take into consideration that tank depth must not be over 2 meters. Tank resting on grounds 3. Types of water tank based on placing and shape is given in fig.
Source: researchepedia.com
A water tank is used to store water to facilitate the daily requirements of habitats. Seismic design of elevated water. To study the guidelines of design of water tank according to is code and checking the design. A) circular tanks b) rectangular tanks c) intze tanks d) circular tank with conical bottom e) spherical tanks. Water tank spreadsheets amp calculations.
Source: electric-cars.com
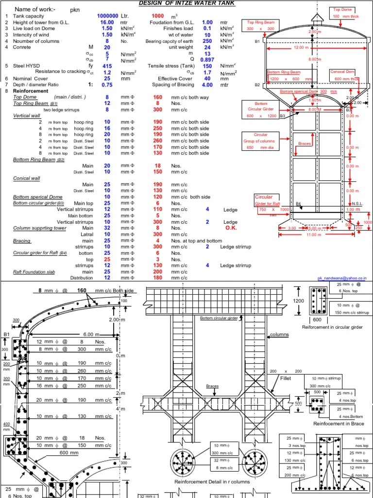
Hit popat, engr.castrocc19, rajswaraj9 and 2 others. For our design, the most popular water tank in india, the circular overhead tank is chosen 1.1.2 overhead circular water tank: Design of overhead circular tank. To study the guidelines of design of water tank according to is code and checking the design. Introduction water tanks parameters include the general design of the.
Source: www.scribd.com
Ugtank.xls workbook is for the analysis and design of anchorage for underground storage tanks, obviously addressing the concerns of buoyancy. Water tank spreadsheets amp calculations itaca. Reinforced concrete tank design structure magazine design of underground watertank university of asia. The principle objective of this paper is to plan, analysis and design a circular overhead tank of 15 lakh litres capacity.
Source: www.4civileng.com
The principle objective of this paper is to plan, analysis and design a circular overhead tank of 15 lakh litres capacity at n.b.k.r. The dome is designed for meridonial thrust and hoop force]. Reinforced concrete tank design structure magazine design of underground watertank university of asia. Circular tank with rigid joint b/w floor & wall. This design excel sheet will.
Source: beautisign.blogspot.com
When water is filled in circular tank, the hydrostatic water pressure will try to increase in diameter at any section. Cicular tank design university of colorado boulder. Also, the water tanks are classified supported shape: A) circular tanks b) rectangular tanks c) intze tanks d) circular tank with conical bottom e) spherical tanks. Aims and objectives to study the various.
Source: airfreshener.club
(b) tank empty, with full earth pressure due to saturated earth fill. 3) the designed rcc rectangular tank can store water upto 240000 liters 4) in this design project we have analyzed the over head rectangular rcc water tank, through theoretical design and staad pro program. Given grade of concrete m 30 n/mm2 grade of steel fe 500 n/mm2 live.
Source: www.researchgate.net
A) circular tanks b) rectangular tanks c) intze tanks d) circular tank with conical bottom e) spherical tanks. Hit popat, engr.castrocc19, rajswaraj9 and 2 others. Circular tanks have minimum surface area when compared to other shapes for a. The dome is designed for meridonial thrust and hoop force]. Water tank spreadsheets amp calculations itaca.
Source: wash.unhcr.org
The design of walls will be done under two condition. Design of circular water tank excel sheet free download. Design excel sheet is here below. 2) for small capacities we go for rectangular water tanks & for large capacities we go for circular tanks. Circular tank with rigid joint b/w floor & wall.
Source: theconstructor.org
Institute of science and technology, vidyanagar. I've had this workbook in a partially finished state for quite a while, and i just recently decided to complete it. Types of water tank based on placing and shape is given in fig. Reinforced concrete water tank design is based on is code. (b) tank empty, with full earth pressure due to saturated.